

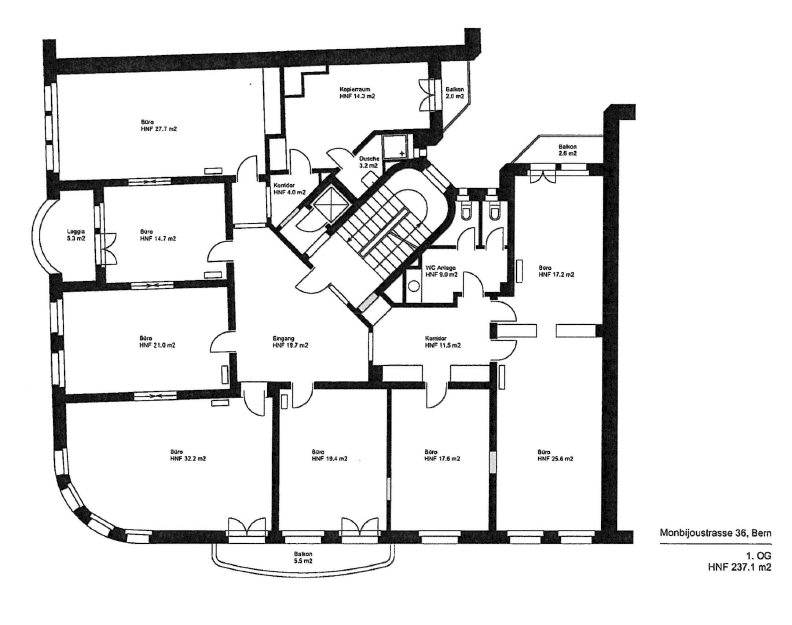
Stilvolle Räume an der Monbijoustrasse 36 zu vermieten
Bildung Bern zieht um. Daher ergibt sich die Chance, ab 1. Mai im Monbijouquartier attraktive Räume zu mieten.
Besonderes:
• Auf zwei Etagen in historischem Eckhaus
• Nutzfläche total: 471m2
• Lift
• 4 Balkone
• Bus- und Tramstation direkt vor dem Haus
• in 10 Minuten zu Fuss ab Bahnhof
• Räume können auch von zwei unabhängigen Parteien genutzt werden. Sie eignen sich für Büroarbeiten aller Art, als Therapie-, Schulungs-, Beratungsräume.
Mehr Informationen: bildungbern - aktuell - stilvolle-raeume-an-der-monbijoustrasse-36-zu-vermieten
Neue Adresse von Bildung Bern (ab 13. April 2026):
Erlachstrasse 16b, 3012 Bern













